
Et vinkelhus er en bolig som er konstruert med en vinkelformet planløsning, der to eller flere fløyer av huset møtes i en rett vinkel. Denne arkitektoniske utformingen gir huset et særpreg, samtidig som det gir muligheter for smarte og effektive planløsninger. Foto: Fiskarhedenvillan
Sist oppdatert: 07-09-2024 Ferdighus
Vinkelhus på 1-2 plan med eller uten garasje
Vinkelhus har blitt stadig mer populære i det moderne boligmarkedet, takket være deres unike arkitektur og smarte bruk av tomteareal, men hva er egentlig et vinkelhus, og hvorfor velger stadig flere boligeiere denne hustypen?
I denne artikkelen ser vi nærmere på hva et vinkelhus er, fordelene ved å bygge et slikt hus, og mulighetene som ligger i ferdighuskonseptet for de som ønsker en enkel og rask byggeprosess.

Foto: Fskarhedenvillan
Hva er et Vinkelhus?
Et vinkelhus er en bolig som er konstruert med en vinkelformet planløsning, der to eller flere fløyer av huset møtes i en rett vinkel.
Denne arkitektoniske utformingen gir huset et særpreg, samtidig som det gir muligheter for smarte og effektive planløsninger.
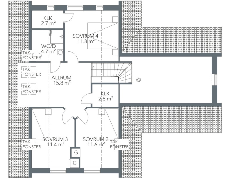
Et vinkelhus kan bygges i 1 plan, 1,5 plan eller 2 plan, avhengig av behov og tomtestørrelse.
Vinkelhuset har blitt et populært valg både i urbane og landlige omgivelser. Dette skyldes at denne hustypen passer godt til forskjellige tomter, inkludert mindre tomter der man ønsker å maksimere boligarealet uten å gå på akkord med antall kvadratmeter.
Det er også et designvalg som kan tilpasses ulike stilarter, fra klassiske hus med tradisjonell arkitektur til moderne funkis vinkelhus som gir en mer minimalistisk og strømlinjeformet estetikk.
Ill: Fskarhedenvillan
Fordelene ved å bygge et vinkelhus
Å bygge et vinkelhus har mange fordeler, og her er noen av de mest fremtredende:
- Fleksible planløsninger: Vinkelhus gir muligheter for fleksible og smarte planløsninger. For eksempel kan fellesarealer som stue og kjøkken plasseres i den ene fløyen, mens private rom som soverom og bad kan ligge i den andre fløyen. Dette gir en naturlig oppdeling av hjemmets funksjoner og gir bedre personvern for de som bor der.
- Optimal utnyttelse av tomten: På grunn av den vinkelformede strukturen kan et vinkelhus passe godt inn på en mindre tomt uten å gå på kompromiss med boarealet. Dette er spesielt fordelaktig i byområder hvor tomteprisene kan være høye og plassen begrenset. Selv på små tomter kan et vinkelhus gi et romslig boareal som utnytter plassen maksimalt.
- Muligheter for utvidelse: Vinkelhus gir ofte gode muligheter for fremtidige utvidelser. Hvis behovene endres over tid, kan man enkelt bygge på en ny fløy uten at det går ut over den eksisterende strukturen. Dette kan være en stor fordel for familier som vokser, eller for de som ønsker å legge til et ekstra rom, en garasje, eller til og med et utendørs rom som en vinterhage eller pergola.
- God solforhold og privatliv: Et vinkelhus kan enkelt tilpasses tomtens retning for å maksimere solinnfallet og utsikten, samtidig som det beskytter mot innsyn fra naboer. Ved å plassere uteområder som terrasser eller hager innenfor vinkelen, kan man skape private utendørs rom som er skjermet fra vind og nysgjerrige blikk.
- Mulighet for integrert garasje: Mange velger å bygge vinkelhus med garasje. Dette gir ikke bare praktisk parkering, men gjør det også enkelt å gå tørrskodd mellom bilen og huset. En vinkelhus med garasje kan dessuten bidra til et mer helhetlig uttrykk og integrere garasjen som en del av boligens arkitektoniske stil.

Foto: Fskarhedenvillan
Vinkelhus som ferdighus
Et vinkelhus kan også bygges som et ferdighus. Ferdighuskonseptet har blitt svært populært i Norge, da det tilbyr en enkel, rask og kostnadseffektiv måte å bygge et nytt hjem på.
Når du velger et ferdighus, får du en forhåndsdesignet bolig som kommer i moduler eller byggesett, som deretter settes sammen på tomten.
Ferdighus har mange fordeler, inkludert:
- Reduserte kostnader og byggetid: Fordi vinkelhus som ferdighus er forhåndsdesignet, kan produksjonskostnadene holdes lave. Dette resulterer ofte i en lavere totalpris sammenlignet med å bygge et hus fra bunnen av. I tillegg kan byggeprosessen gå raskere fordi mange av elementene er ferdigproduserte og kan settes sammen på kort tid.
- Forutsigbarhet: Når du velger et vinkelhus som ferdighus, får du en klar plan for hva du kan forvente når det gjelder både design, tidsplan og budsjett. Dette gir en stor trygghet for mange boligkjøpere som ønsker å unngå uforutsette kostnader og forsinkelser.
- Stor valgfrihet i design: Selv om ferdighus ofte er basert på standardmodeller, betyr det ikke at du ikke kan få tilpasset ditt vinkelhus til dine personlige preferanser. Mange ferdighusleverandører tilbyr fleksible løsninger som lar deg tilpasse alt fra fasader og taktyper til interiørvalg og planløsning. Dette betyr at du kan få et vinkelhus i 1 plan, et vinkelhus et plan, eller et vinkelhus 2 plan, alt etter hva som passer dine behov og ønsker.

Ill: Fskarhedenvillan
Vinkelhus i ulike etasjeløsninger
Vinkelhus kan bygges i flere etasjevarianter, inkludert:
- Vinkelhus i 1 plan: Dette er ideelt for de som ønsker alle rommene på én etasje, noe som gir enkel tilgang og fleksibilitet, spesielt for eldre eller familier med små barn. Et vinkelhus 1 plan gir også en naturlig overgang mellom innendørs og utendørs arealer, noe som kan være en stor fordel for de som liker å nyte hagen og terrassen til fulle.
- Vinkelhus i 1,5 plan: Denne varianten gir litt ekstra plass ved å utnytte loftsetasjen. Dette kan være et godt valg for de som ønsker mer rom, men som samtidig ønsker å beholde en lavere profil på huset.
- Vinkelhus i 2 plan: For familier som trenger mer plass, kan et vinkelhus 2 plan være det perfekte valget. Denne løsningen gir rikelig med plass og muligheter for å ha adskilte soner for privatliv og fellesskap. Et vinkelhus i to etasjer kan også passe godt på mindre tomter der det er ønskelig å bygge i høyden.

Funkis vinkelhus: En moderne tolkning
For de som ønsker en moderne, minimalistisk stil, kan et funkis vinkelhus være et godt valg. Funkis-stilen, som er kjent for sine rene linjer, store vindusflater og funksjonelle løsninger, kan lett tilpasses i et vinkelhusdesign.
Dette gir ikke bare et stilrent uttrykk, men også et hjem som utnytter plass og lys på best mulig måte.
Et vinkelhus er en allsidig hustype som gir mange fordeler, enten det bygges som et ferdighus eller tegnes fra bunnen av.
Med muligheter for smarte planløsninger, tilpasning til mindre tomter, fremtidig utvidelse, godt solinnfall, og mulighet for integrert garasje, er det ikke rart at vinkelhus blir stadig mer populære.
Enten du ønsker et vinkelhus i 1 plan, 1,5 plan eller 2 plan, finnes det utallige muligheter for å tilpasse huset til dine behov og ønsker.
Med ferdighuskonseptet kan du dessuten realisere boligdrømmen raskt og kostnadseffektivt.
Uansett hvilken stil eller løsning du velger, gir et vinkelhus en unik kombinasjon av funksjonalitet, estetikk og komfort.

