
- Vi tror ikke på å vente på bedre tider. Vi tror på å skape dem, sier Tommy Nyborg, daglig leder i Fiskarhedenvillan Norge. Foto: Norsk Byggebransje
Sist oppdatert: 01-11-2025 Norsk Byggebransje
Minihus by Fiskarhedenvillan: Neste generasjons småhus lansert
I dag er det offisielt. Fiskarhedenvillan lanserer det nye konseptet Minhus by Fiskarhedenvillan, selskapets egen, gjennomarbeidede satsing på minihus/mikrohus.
Ambisjonen er krystallklar, utvikle neste generasjon små boliger som føles store i hverdagen.
Hvorfor et nytt minihus nå?
- Vi tror ikke på å vente på bedre tider. Vi tror på å skape dem, sier Tommy Nyborg, daglig leder i Fiskarhedenvillan Norge.
I et marked hvor mange bremser, dobler FHV innsatsen. Minihus by Fiskarhedenvillan skal gi trygghet, forutsigbarhet og en bolig som både kan bygges, og eies uten at man gir opp komfort, stil eller kvalitet.
Minihus by Fiskarhedenvillan er ikke en nedskalering, det er en modernisering.
Hva skiller neste generasjon minihus?
Fiskarhedenvillan har tatt med seg læring fra tidligere modeller og løftet alt ett hakk. Både uttrykk, kvalitet og funksjon er gjennomgått.
Kjernen er smart arealbruk, lavt energiforbruk og høy trivsel.
Minihus by Fiskarhedenvillan er designet for å føles større enn antall kvadrat tilsier, med bedre belysning, smartere flyt, tydelig soneinndeling og kompromissløs funksjon.
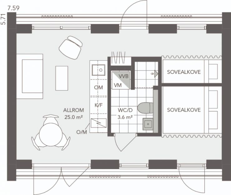
30 m² – alt på én flate, uten hems
Den nye planløsningen prioriterer livskvalitet fremfor «plass til alt». I stedet for å spørre «hva får vi presset inn?» har teamet bak Minihus by Fiskarhedenvillan spurt «hvordan skal det føles å bo her?»
Svaret er alt på én flate, ingen hems og en plan som oppleves luftig, logisk og uanstrengt i bruk.
Interiør med industriell presisjon og personlig frihet
Interiøret er utviklet sammen med IKEA, som leverer kjøkken og setter rammen for det helhetlige uttrykket i de første modellene.
Filosofien er enkel, levere en ferdig definert løsning for å sikre flyt, kvalitet og kostnadskontroll, men samtidig åpne for små, men viktige valg som farger, fronter og detaljering.
- Vi tror på å gi frihet hvor det faktisk betyr noe, sier Nyborg.
Trygghet i urolige tider: 12 mnd prisgaranti
Fiskarhedenvillans prisgaranti på 12 måneder gjelder også for Minihus. Dermed får kundene den samme forutsigbarheten som ved selskapets øvrige husmodeller, en reell «ro i magen» når beslutningen skal tas.
Tidslinje og kapasitet
Planen er at første Minihus by Fiskarhedenvillan leveres tidlig i 2026. Interessen er allerede stor og Fiskarhedenvillan forbereder kapasitet for å kunne skalere.
Lanseringen markerer starten på et konsept som vil videreutvikles fortløpende med betydelige ambisjoner.
En offensiv lansering i et krevende marked
Nyborg beskriver markedet som krevende, men modent.
- Folk bygger fortsatt, bare med mer omtanke.
- Minihus treffer markedet godt i skjæringspunktet mellom prisbevissthet, energibruk, materialvalg og en livsstil som prioriterer kvalitet over kvantitet.
- Innovasjon handler ikke om størrelse, men om vilje, sier han.

Planløsning - Minihus by Fiskarhedenvillan. Ill: Fiskarhedenvillan
Minihus by Fiskarhedenvillan
- Format: 30 m², designet for å føles større
- Plan: Alt på én flate, null hems, tydelig soneinndeling
- Brukskvalitet: Lys, luft og flyt veier tyngre enn antall skap
- Energieffektivitet: Lavt forbruk og smarte materialvalg
- Interiør: IKEA som grunnpakke, med mulighet for personlige valg
- Forutsigbarhet: 12 mnd prisgaranti
-
Levering: Første leveranser planlagt tidlig 2026
Ambisjonene videre
Fiskarhedenvillan gir seg ikke med lansering av nye minihus. Minihus by Fiskarhedenvillan er et symbol på selskapets videre ambisjoner; utvikling, tilgjengelighet og bærekraft, uten å miste håndverket av syne.
Flere prosjekter er allerede på gang, men detaljene kommer senere.
- Vi liker å overraske og aller helst positivt, sier Nyborg. Småhus har lenge vært en trend. Minihus by Fiskarhedenvillan tar trenden fra «smart knep» til fullverdig boligopplevelse.
Når standarden heves på plan, materialer og forutsigbarhet, flytter minihuset seg fra et alternativ for de spesielt interesserte til et reelt valg for langt flere.
Dette handler ikke om å bo mindre, men om å bo smartere.
| Designelement | Løsning | Effekt på romfølelse | Arkitektonisk idé |
|---|---|---|---|
| Planløsning på én flate | Ingen hems, alt på bakkenivå med åpen romflyt | Gir bedre bevegelsesfrihet og sammenheng mellom soner | Minimalisme og tilgjengelighet – alle funksjoner i ett plan |
| Store vindusflater | Strategisk plassert for lysinnslipp og utsikt | Lys og dybde gjør rommet større og mer levende | Nordisk lysbruk som sentralt designprinsipp |
| Materialvalg | Naturlige materialer med varme toner og tekstur | Skaper taktil komfort og lunhet i små rom | Håndverk og natur i balanse |
| Integrerte løsninger | Oppbevaring og funksjoner bygget inn i vegger og møbler | Fjerner rot og frigjør visuell plass | Funksjonell design fremfor dekor |
| Høy takhøyde | Vertikal utnyttelse av volum | Gir luft, lys og romfølelse utover arealet | Optisk romforstørrelse gjennom vertikal rytme |





